A Sinfonia Silenciosa dos Espaços Abertos

Uma jornada poética pela reinvenção de uma residência em Alto de Pinheiros, onde luz e materialidade dançam em harmonia

Casa Alto de Pinheiros / Terra Arquitetura - Fotografia de Interiores, Sala de Estar, Madeira, Sofá, Iluminação

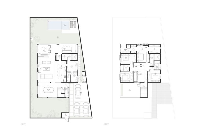
Em meio ao tranquilo bairro de Alto de Pinheiros, em São Paulo, uma residência renasce, revelando um novo diálogo entre o interior e o exterior, uma poética de habitar que se desenrola em camadas de luz e materialidade. Esta casa, fruto de uma reforma meticulosa de uma estrutura antiga, propõe uma experiência de viver que se estende como um tecido contínuo para um jovem casal em busca de um lar que acolha o início de sua jornada familiar. O bairro, marcado por suas ruas arborizadas e generosos lotes, oferece o cenário ideal para abrigar esta transformação. A casa original, embora sólida em sua essência, carecia de uma conexão fluida com o ambiente externo, enclausurada em compartimentações rígidas que não mais serviam aos anseios contemporâneos. O projeto, então, desdobra-se a partir da premissa de atualizar usos, fluxos e atmosferas, redefinindo a relação entre os espaços e trazendo uma linguagem de materiais que ressoa com o espírito do tempo presente. O desejo do casal era claro: um lar acolhedor, flexível e inundado de luz, que refletisse as transformações naturais de uma família em formação. A busca por espaços integrados, que favorecessem o convívio, mas que também respeitassem momentos de privacidade, guiou cada decisão. O desafio principal residia na reorganização do programa a partir de uma estrutura existente, onde o pavimento térreo se mostrava compartimentado em demasia. A solução foi desenhar uma planta praticamente do zero, mantendo apenas alguns ambientes em suas posições originais, enquanto alguns reforços estruturais se faziam necessários para integrar e expandir os espaços. Ao repensar a fachada, novas aberturas surgiram, permitindo que a luz natural permeasse a casa, transformando-a em um abrigo luminoso e acolhedor. A ideia de continuidade espacial é o fio condutor do projeto. Em vez de demarcar fronteiras rígidas, optou-se por uma organização fluida, onde os ambientes se interligam por meio de visuais cruzadas, planos transparentes e elementos de transição que ampliam a percepção do espaço. O paisagismo, elemento vital, abraça a casa em sua fachada frontal e traseira, integrando-a ao entorno. Os espaços sociais se desenvolvem como uma sequência harmoniosa, onde sala, jantar e cozinha dialogam sem barreiras fixas, favorecendo uma convivência natural e descomplicada. A luz natural, convidada de honra, permeia os ambientes através de grandes aberturas e painéis vazados, conferindo uma atmosfera mutável e sensorialmente rica, enquanto a materialidade assume um papel central na narrativa arquitetônica. O projeto optou por uma paleta de materiais homogênea, com tons quentes e próximos, evitando soluções óbvias e previsíveis. A madeira natural Tauari, com seu calor acolhedor, reveste pisos e painéis, enquanto superfícies claras e minerais amplificam a luminosidade, elevando a sensação de leveza. Os painéis vazados atuam como filtros solares e visuais, equilibrando transparência e privacidade, e criando jogos de luz e sombra que se metamorfoseiam ao longo do dia. A parede de tijolo, ousada e vibrante, torna-se o elemento central que insufla cor e vitalidade à residência. A experiência do usuário é cuidadosamente orquestrada através do deslocamento pelo espaço, onde os ambientes se revelam gradualmente, alternando momentos de abertura e contenção. O mobiliário e a curadoria de objetos reforçam a ideia de um espaço vivido, onde o cotidiano é não apenas acomodado, mas celebrado como parte intrínseca da arquitetura. Mais do que uma simples reforma, este projeto propõe uma nova forma de habitar, alinhada às dinâmicas contemporâneas e às necessidades de uma família em formação. Ao reorganizar fluxos, ampliar relações visuais e enaltecer a presença da luz natural, a casa passa a operar como um organismo mais aberto, flexível e profundamente conectado ao seu entorno. A principal contribuição do projeto reside na criação de uma arquitetura silenciosa, que não busca se impor de forma ostensiva, mas, sim, oferecer um suporte generoso para a vida cotidiana. Um espaço que acompanha o tempo, os usos e as transformações naturais de seus habitantes.