O Sopro do Dragão: A Renovação Poética de Ay

Uma dança entre o tempo e a matéria, onde tradições ancestrais encontram nova vida.

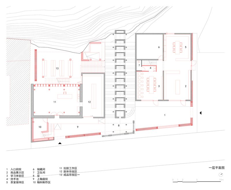
Renovação Adaptativa do Forno Histórico de "Ay" / WUGE Studio + YFS - Imagem 1 de 43

Nas profundezas montanhosas do nordeste de Fujian, a cerâmica de esmalte negro conhecida como Ay se apresenta como um testemunho silencioso de uma tradição que transcende séculos. O forno histórico que a produz, aninhado na encosta de uma colina, ergue-se como um dragão adormecido, seu corpo alongado e inclinado parece sussurrar histórias antigas ao vento. O local, na entrada da vila, é um convite à contemplação. Ali, o forno assume o papel de coração pulsante de um complexo artesanal rural, cercado por uma dança harmoniosa de estruturas que sutilmente mesclam o ontem e o hoje. À oeste, uma velha casa de terra batida irradia uma aura telúrica, enquanto à leste, uma habitação contemporânea de tijolos e concreto projeta sombras que se entrelaçam com a luminosidade do amanhecer. O espaço é um mosaico de texturas, onde a pedra dos anexos dispersos ao redor do forno se apresenta como uma memória palpável do solo que um dia os viu nascer. A luz aqui, ao longo do dia, se transforma em uma coreografia de brilhos e penumbras, desenhando arabescos nas superfícies, enquanto o aroma da terra úmida e o eco das conversas ancestrais se fundem em uma sinfonia sensorial. Ao adentrar este santuário de criação, somos convidados a um diálogo íntimo com a materialidade. O toque frio do concreto contrasta com a suavidade da terra, enquanto o calor do forno desperta memórias adormecidas e inspira novas possibilidades. Esta renovação adaptativa não é meramente uma intervenção arquitetônica; é uma celebração do diálogo entre o passado e o presente, onde cada elemento arquitetônico se torna uma nota na melodia contínua do tempo. Aqui, no berço de Ay, somos lembrados de que a arquitetura é mais do que construção; é uma narrativa viva que ressoa com a essência da condição humana.

Inscreva-se

Receba nosso boletim mensal sobre arquitetura e materialidade.