O Refúgio Aéreo: A Poética do Colégio Alumnus

Um encontro harmonioso entre estrutura flutuante e a serenidade da convivência urbana

Colégio Alumnus / BIRI + Estúdio Pedro Haruf + MOBIO Arquitetura - Fotografia de Exterior

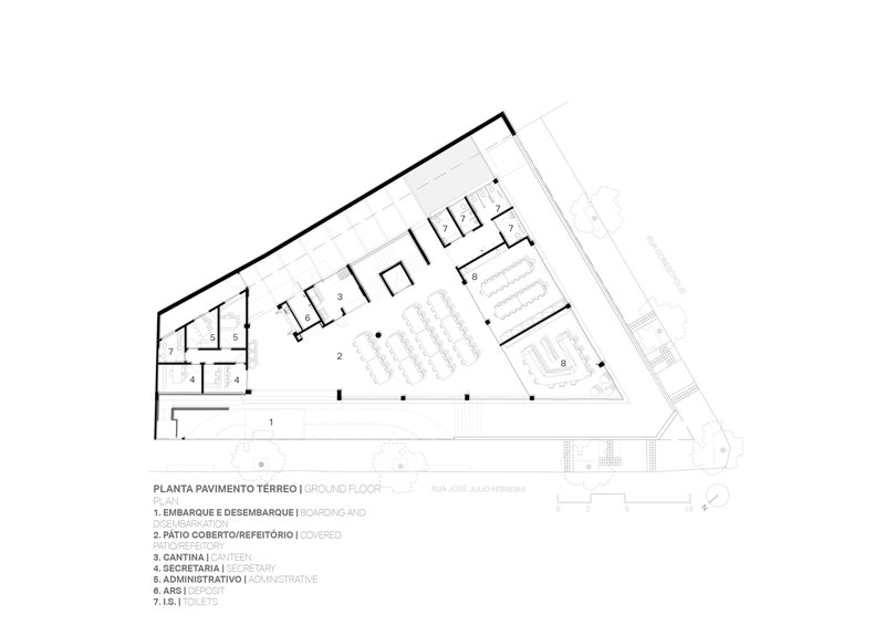
Na contemplativa região nordeste de Belo Horizonte, ergue-se uma ode à arquitetura moderna, o Colégio Alumnus. Este intrincado projeto, uma colaboração magistral entre BIRI, Estúdio Pedro Haruf e MOBIO Arquitetura, é mais do que uma simples instituição de ensino. É um testemunho da fusão harmoniosa entre funcionalidade e estética, onde a materialidade do concreto ganha vida, dançando sob a luz suave que banha o espaço. Ao adentrar o Colégio Alumnus, somos recebidos por uma experiência sensorial em que a arquitetura se torna uma extensão do ambiente natural. As áreas de uso comum, concebidas com uma visão inovadora, transformam-se em espaços multiuso que convidam à interação e ao aprendizado. A circulação não é apenas um meio de transitar de um ponto a outro, mas uma jornada sensorial em que cada passo revela novos ângulos, novas sombras, novas histórias. O edifício, com sua estrutura flutuante sobre um pilotis no nível térreo, é um poema de concreto que respira, que vive. A decisão arquitetônica de suspender as salas de aula e a quadra esportiva é uma dança gentil com a natureza, permitindo que o ar fresco atravesse o espaço, criando um oásis de tranquilidade em meio à agitação urbana. A sensação de liberdade é palpável, como se as paredes tivessem sido desenhadas para abraçar o vento, para deixá-lo sussurrar segredos nos ouvidos dos que ali habitam. Este projeto não é apenas uma construção, mas uma manifestação tangível do desejo humano de conexão. Os materiais escolhidos, cada um com sua textura e história, dialogam com a luz de forma encantadora, criando um caleidoscópio de reflexos e sombras que mudam ao longo do dia. O concreto, com sua robustez e simplicidade, torna-se um canvas onde a luz pinta suas nuances, evocando uma sensação de permanência e segurança. A implantação do Colégio Alumnus respeita as normativas urbanas, mas faz isso com uma graça que parece desafiar a gravidade. Ao ocupar toda a projeção permitida, o projeto não só maximiza o uso do espaço, mas também reinventa a maneira como interagimos com ele. O afastamento frontal e lateral não é uma mera exigência legal, mas uma oportunidade de criar áreas de convivência que pulsão com vida e aprendizado. O Colégio Alumnus não é apenas um espaço físico, mas uma experiência imersiva que nos convida a reimaginar o que uma escola pode ser. É um lugar onde a arquitetura e a educação se encontram para formar um todo coeso, onde cada detalhe foi cuidadosamente pensado para enriquecer a experiência humana. Aqui, o passado e o futuro se encontram em um presente vibrante, onde o concreto, a luz e o ar se entrelaçam em uma dança eterna. Em sua essência, o Colégio Alumnus é um lembrete gentil de que a arquitetura é, acima de tudo, uma forma de arte que toca a alma, que desperta emoções e que nos conecta uns aos outros de maneiras profundas e duradouras.

Inscreva-se

Receba nosso boletim mensal sobre arquitetura e materialidade.