Harmonia Concreta: A Dança da Luz e dos Materiais

Um refúgio contemporâneo onde o concreto revela sua poesia e a luz desenha experiências sensoriais únicas.

Apartamento Moiré / CODA Arquitetura - Fotografia de Interiores, Sala de Estar, Madeira, Escada, Cadeira

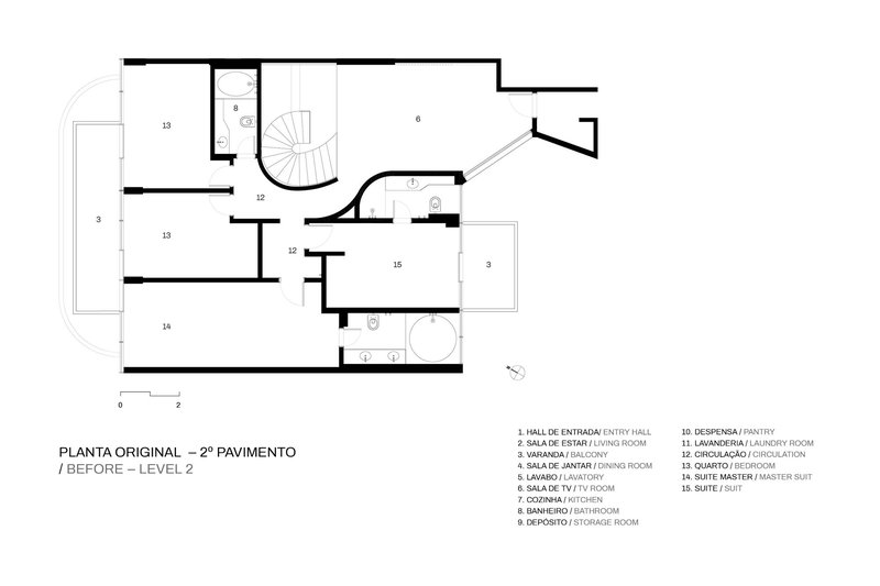
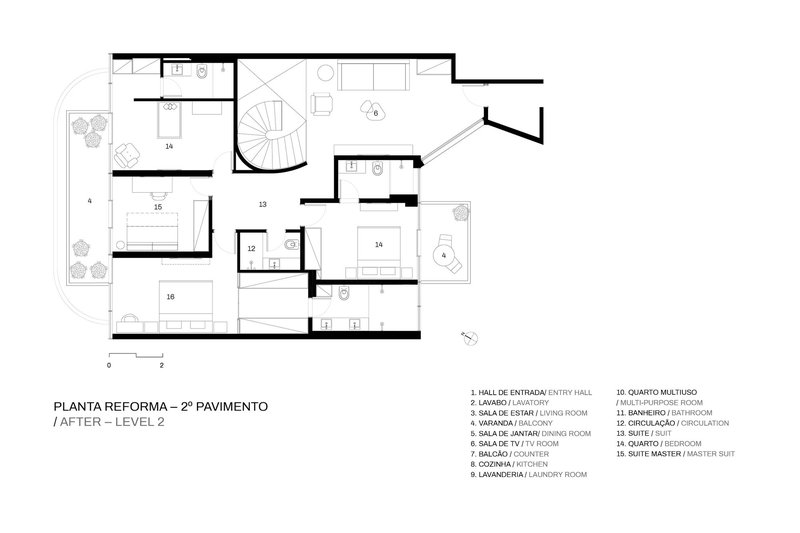
No coração pulsante de Brasília, onde as linhas modernistas de Niemeyer se encontram com o céu imenso do Planalto Central, reside um apartamento que transcende o ordinário, revelando-se como um santuário de serenidade e arte. Este refúgio de 294 metros quadrados, localizado em um dos pioneiros blocos duplex das icônicas superquadras, foi meticulosamente repensado pela CODA Arquitetura, que empreendeu uma transformação que vai além da estética, tocando profundamente o âmago da experiência habitacional.

Apartamento Moiré / CODA Arquitetura - Fotografia de Interiores, Sala de Estar, Madeira, Mesa, Cadeira, Iluminação, Viga
Apartamento Moiré / CODA Arquitetura - Fotografia de Interiores, Sala de Estar, Madeira, Mesa, Cadeira, Iluminação, Viga

Adentrar este espaço é ser envolvido por uma atmosfera que reverbera a essência do edifício original, onde vigas e pilares de concreto aparente se erguem como esculturas silenciosas, celebrando a materialidade da estrutura. O concreto, com sua textura áspera e sua tonalidade terrosa, convida ao toque, evocando uma conexão visceral com o ambiente. Ele é a espinha dorsal que sustenta e define, enquanto a luz natural, filtrada pelas amplas janelas, desenha sombras que dançam ao longo do dia, criando um balé etéreo que transforma o espaço em um palco de sensações mutáveis.

Apartamento Moiré / CODA Arquitetura - Fotografia de Interiores, Madeira, Mesa, Cadeira
Apartamento Moiré / CODA Arquitetura - Fotografia de Interiores, Madeira, Mesa, Cadeira

A reforma orquestrada pela CODA não apenas preservou, mas também integrou os espaços, criando uma fluidez que reflete o ritmo da vida contemporânea. A escada, com sua estrutura original preservada, emerge como uma peça central da narrativa arquitetônica. O novo guarda-corpo e corrimão metálico, trabalhados com precisão artesanal, adicionam uma camada de sofisticação e modernidade. É a superposição das malhas metálicas que forma o guarda-corpo que dá origem ao efeito Moiré, uma ilusão visual que hipnotiza e intriga, criando uma dança de padrões que se altera com o movimento e a perspectiva.

Apartamento Moiré / CODA Arquitetura - Fotografia de Interiores, Sala de Jantar, Mesa, Madeira, Cadeira
Apartamento Moiré / CODA Arquitetura - Fotografia de Interiores, Sala de Jantar, Mesa, Madeira, Cadeira

Este efeito, que empresta seu nome ao projeto, é uma metáfora para a complexidade e a beleza do espaço habitado. Ele reflete a interação entre o ser humano e o ambiente construído, uma relação que é tanto física quanto emocional. Na quietude deste apartamento, os habitantes são convidados a explorar cada detalhe, a descobrir a poesia nas interseções de luz e sombra, de solidez e transparência.

Apartamento Moiré / CODA Arquitetura - Fotografia de Interiores, Balcão, Jardim, Aido
Apartamento Moiré / CODA Arquitetura - Fotografia de Interiores, Balcão, Jardim, Aido

Os materiais escolhidos pela CODA Arquitetura falam uma linguagem de sutileza e profundidade. A madeira, com sua textura cálida e suas nuances ricas, contrasta e complementa o concreto, criando uma harmonia que é ao mesmo tempo visual e tátil. Os móveis de design assinado pontuam o espaço com elegância discreta, enquanto os toques de cor, cuidadosamente inseridos, trazem vitalidade e personalidade ao ambiente.

Apartamento Moiré / CODA Arquitetura - Fotografia de Interiores, Sala de Estar, Madeira, Mesa, Cadeira
Apartamento Moiré / CODA Arquitetura - Fotografia de Interiores, Sala de Estar, Madeira, Mesa, Cadeira

Viver neste apartamento é embarcar em uma jornada sensorial onde cada instante é uma descoberta. A luz que invade pela manhã, suave e dourada, desperta a vida; à tarde, ela se torna mais intensa, criando contrastes dramáticos que acentuam as formas e texturas. À noite, a iluminação cuidadosamente planejada transforma o espaço em um refúgio de tranquilidade, onde o jogo de sombras e luz continua a encantar.

Apartamento Moiré / CODA Arquitetura - Fotografia de Interiores, Madeira, Cadeira, Mesa, Iluminação
Apartamento Moiré / CODA Arquitetura - Fotografia de Interiores, Madeira, Cadeira, Mesa, Iluminação

A reforma deste apartamento em Brasília é um testemunho da capacidade da arquitetura de moldar experiências e de dialogar com o espírito humano. É um espaço onde a materialidade encontra a poesia, onde a simplicidade das formas esconde uma complexidade de significados. Aqui, o concreto não é apenas um material: é uma narrativa, uma presença que nos convida a refletir sobre a beleza do mundo construído e a nossa relação com ele.

Apartamento Moiré / CODA Arquitetura - Fotografia de Interiores, Sala de Estar, Cadeira
Apartamento Moiré / CODA Arquitetura - Fotografia de Interiores, Sala de Estar, Cadeira

Inscreva-se

Receba nosso boletim mensal sobre arquitetura e materialidade.